TIN MỚI
	
	
		
		
	
	
		
			
		
		 
	
	
	
		
		
	
	
		
			
		
		 
	
Đây là một ngôi nhà nhỏ có diện tích 3,5mx7m, trong cộng đồng người Việt gốc Hoa tại quận Bình Tân (TP HCM)
	
	
		
		
	
	
		
			
		
		 
	
Để tiết kiệm chi phí, các kiến trúc sư đã đơn giản hóa các chi tiết, vật liệu và nội thất cũng như tối ưu hóa các không gian chức năng và giảm chiều cao mỗi tầng.
	
	
		
		
	
	
		
			
		
		 
	
	
	
		
		
	
	
		
			
		
		 
	
Điểm nhấn của ngôi nhà là chiếc cầu thang độc đáo không chỉ dùng làm cầu thang mà còn là góc trồng hoa, đọc sách hay ngồi thư giãn.
	
	
		
		
	
	
		
			
		
		 
	
	
	
		
		
	
	
		
			
		
		 
	
Kiến trúc sư đề nghị không trát vữa cho ngôi nhà mà dùng luôn gạch thô để làm mặt tiền cũng như nội thất, sau khi hoàn thành ngôi nhà khiến ai cũng phải xuýt xoa vì quá đẹp.
	
	
		
		
	
	
		
			
		
		 
	
Cổng và hàng rào được thiết kế đơn giản với lưới sắt để trồng các loại cây thân leo. Những dây leo này sau này sẽ che phủ mặt tiền ngôi nhà và
	
	
		
		
	
	
		
			
		
		 
	
	
	
		
		
	
	
		
			
		
		 
	
Nhóm thiết kế mong muốn mang đến một không gian sống tươi sáng và sinh động cho khu phố với quan niệm nhà đẹp không chỉ dành cho người có thu nhập cao.
	
	
		
		
	
	
		
			
		
		 
	
	
	
		
		
	
	
		
			
		
		 
	
Không gian khác trong nhà.
	
	
		
		
	
	
		
			
		
		 
	
	
	
		
		
	
	
		
			
		
		 
	
	
	
		
		
	
	
		
			
		
		 
	
	
	
		
		
	
	
		
			
		
		 
	
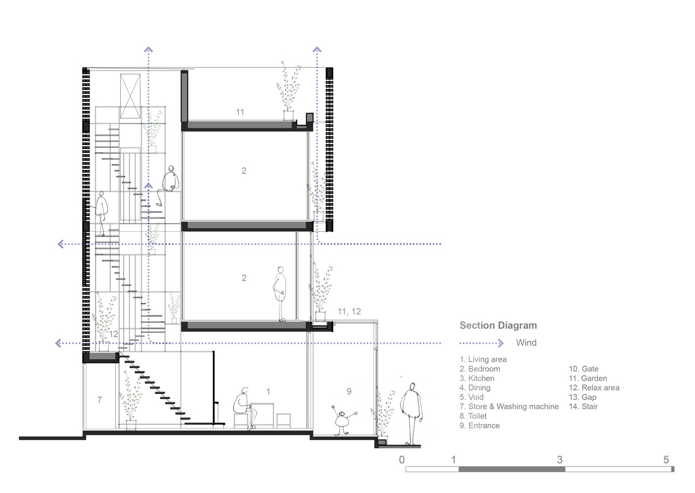
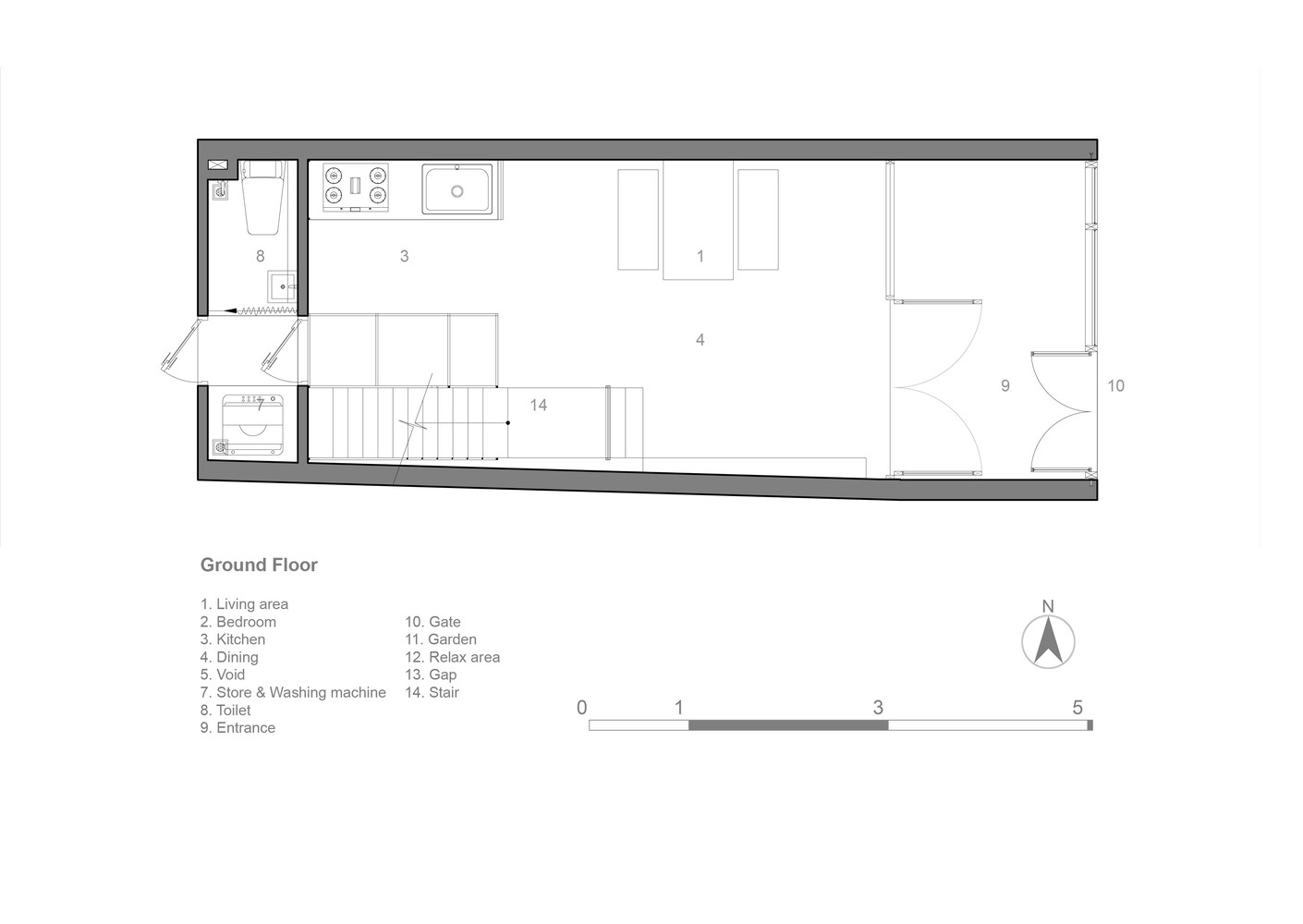
Bản vẽ thiết kế của ngôi nhà.
Theo Archdaily/Tropical Space
Độc đáo ngôi nhà trên tảng đá khổng lồ ở Ninh Thuận
Link bài gốc: Ngôi nhà không trát vữa khiến ai cũng phải trầm trồ
	
		
			
		
		
	
								 
	 
	Đây là một ngôi nhà nhỏ có diện tích 3,5mx7m, trong cộng đồng người Việt gốc Hoa tại quận Bình Tân (TP HCM)
 
	Để tiết kiệm chi phí, các kiến trúc sư đã đơn giản hóa các chi tiết, vật liệu và nội thất cũng như tối ưu hóa các không gian chức năng và giảm chiều cao mỗi tầng.
 
	 
	Điểm nhấn của ngôi nhà là chiếc cầu thang độc đáo không chỉ dùng làm cầu thang mà còn là góc trồng hoa, đọc sách hay ngồi thư giãn.
 
	 
	Kiến trúc sư đề nghị không trát vữa cho ngôi nhà mà dùng luôn gạch thô để làm mặt tiền cũng như nội thất, sau khi hoàn thành ngôi nhà khiến ai cũng phải xuýt xoa vì quá đẹp.
 
	Cổng và hàng rào được thiết kế đơn giản với lưới sắt để trồng các loại cây thân leo. Những dây leo này sau này sẽ che phủ mặt tiền ngôi nhà và
 
	 
	Nhóm thiết kế mong muốn mang đến một không gian sống tươi sáng và sinh động cho khu phố với quan niệm nhà đẹp không chỉ dành cho người có thu nhập cao.
 
	 
	Không gian khác trong nhà.
 
	 
	 
	 
	Bản vẽ thiết kế của ngôi nhà.
Theo Archdaily/Tropical Space
Độc đáo ngôi nhà trên tảng đá khổng lồ ở Ninh Thuận
Link bài gốc: Ngôi nhà không trát vữa khiến ai cũng phải trầm trồ
Tuyên bố trách nhiệm: Bài viết được lấy nguyên văn từ nguồn tin nêu trên. Mọi thắc mắc về nội dung bài viết xin liên hệ trực tiếp với tác giả. Chúng tôi sẽ sửa, hoặc xóa bài viết nếu nhận được yêu cầu từ phía tác giả hoặc nếu bài gốc được sửa, hoặc xóa, nhưng vẫn bảo đảm nội dung được lấy nguyên văn từ bản gốc.
				Bài tương tự bạn quan tâm
			
			
								
									BK88: Ngôi Nhà Cá Cược Quốc Tế Đáng Tin Cậy Mà...
								
								
									
						- Thread starter bk88innet1
- Ngày bắt đầu
								
									TP HCM Nỗ lực thu hút "đại bàng": Lấy lại vị thế...
								
								
									
						- Thread starter Mr LNA
- Ngày bắt đầu
								
									Không có thời gian nghỉ ngơi, Messi đối mặt với...
								
								
									
						- Thread starter Mr LNA
- Ngày bắt đầu
								
									Chi gần nửa tỷ biến căn nhà tuổi đời hơn 20 năm...
								
								
									
						- Thread starter Mr LNA
- Ngày bắt đầu
								
									Nàng dâu Việt ở Đan Mạch kể "sự lạ" tại xứ sở hạnh...
								
								
									
						- Thread starter Mr LNA
- Ngày bắt đầu
								
									Ngôi làng mang vẻ ngoài kỳ dị nhưng ẩn chứa bí mật...
								
								
									
						- Thread starter Mr LNA
- Ngày bắt đầu
 
				
		 
			

